Design-Ready Homes - Lumina Series - Inter-Terrace Dwellings

The Lumina series features 5 spacious bedrooms, 1 study, and 5 luxurious bathrooms, catering to large families and those who enjoy hosting gatherings.

With a modern and sleek design, the open floor plan allows abundant natural light to fill the space, accentuating its beauty.

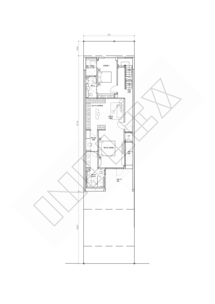
The bedrooms are generously sized, offering ample closet space and breathtaking views of the landscape. The master suite stands out with its walk-in closet, dressing room, lounge, and a lavish en-suite bathroom boasting a soaking tub and separate shower.

The study provides a secluded retreat for remote work, studying, or reading, benefiting from ample natural light streaming through the large windows.

Each of the 5 impressive bathrooms can be adorned with high-end fixtures and finishes to enhance the overall sense of luxury, while showcasing unique design and style.

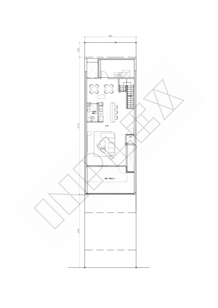
The attic is dedicated to entertainment, extending the experience to the roof terrace.

In summary, the Lumina series home design is a modern architecture that effortlessly combines style and functionality. It caters to individuals who appreciate life’s finer aspects, seeking a space that is both visually stunning and practical.

465.18 sqm

DIMENSIONS

Standard: 6.75 x 18.2m (W x L)

ROOMS

3 storey + attic, 6 bedrooms + study, 7 bathrooms

Cost Estimate

Design & Engineering:

$58,000*

Permitting:

$xx,xxx*

Fabrication:

$xx,xxx*

Site Work:

$xx,xxx*

Transport and Install:

$xx,xxx*

Total

$1.63 x M

*See pricing page for estimate assumptions and exclusions

Designer

Designed by Inplex, A D Lab

Warren Liu

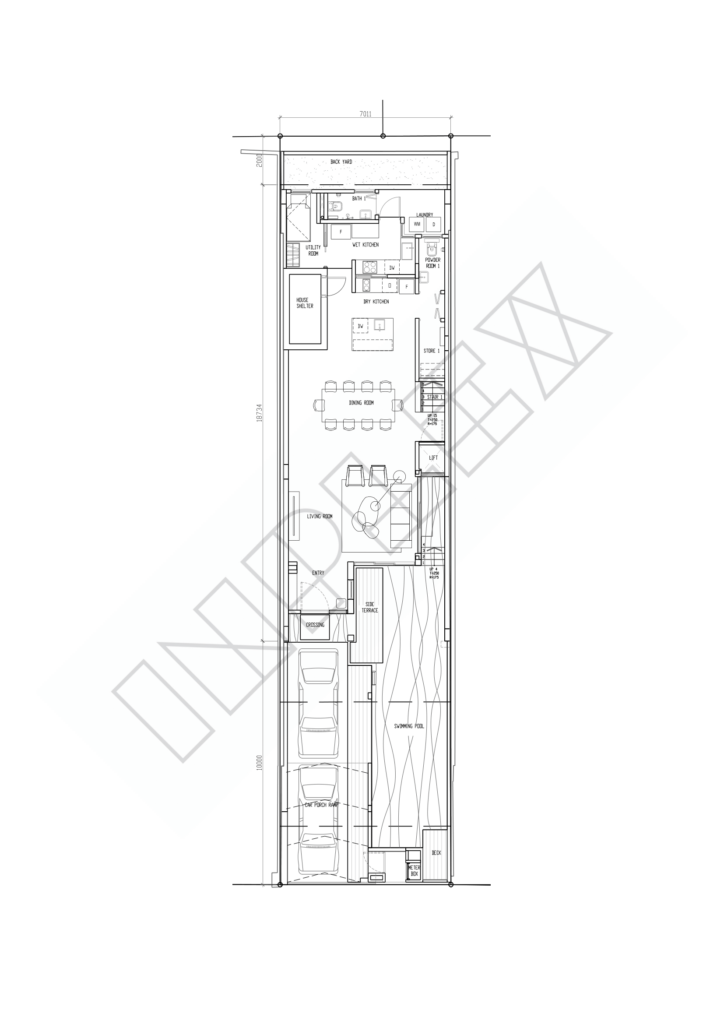
Level 1

Level 2

Level 3

Attic

Lorem ipsum dolor sit amet, consectetur adipiscing elit. Ut elit te

Specifications

Initial Design Payment Cost

Disclaimer: All floor plan information, specifications and total cost contain herein are subject to change and/or amendments as directed by the relevant authorities architects and cannot form any part of an offer and contract..

Features

Specifications

Upgrades options